Antony Road, Shirley
3 bedroom semi detached bungalow
Offers in excess of
£379,950
Freehold
Summary
A fantastic opportunity to purchase a large three bedroom bungalow situated on a substantial plot. Comprising of three bedrooms, two bathrooms, kitchen, two reception rooms, utility room, garage and a rear garden. This property has lots of potential, set in a convenient location and is a must view.
- 3 bed
- 2 bath
- Garage
- No Chain
- Extended
- Two Bathrooms
- Three Bedrooms
- Large Plot
- Utility Room
- Pleasant Rear Garden
LOCAL AREA
Situated on a popular road in Shirley, this property has great access to transport links and local shops such as; bus stops, Shirley train station, M42 motorway network, retail parks and Shirley High Street. The High Street boasts a range of national supermarkets to independent shops. There is something for everyone.
APPROACH
Via a drive leading to the main front door. There is also a door to the front leading to the side access and garage.
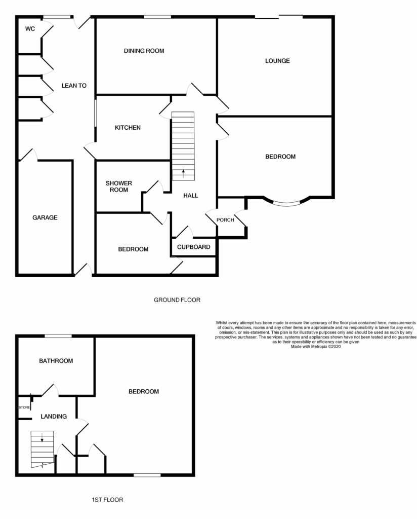
GROUND FLOOR
ENTRANCE HALL
A welcoming entrance hall, with doors leading to the ground floor rooms, central heating radiator, stairs to the first floor landing and a storage cupboard.
LOUNGE 12′ 4″ x 15′ 10″ (3.78m x 4.85m)
A large lounge with a set of double glazed sliding patio doors to the rear elevation, feature fireplace and a central heating radiator.
DINING ROOM 9′ 10″ x 14′ 4″ (3.0m x 4.37m)
Having a double glazed window to the rear elevation overlooking the rear garden, feature fireplace and a central heating radiator.
KITCHEN 11′ 1″ x 10′ 11″ (3.4m x 3.33m)
Comprising of a range of wall and floor base units, roll top work surfaces with an inset sink, space for a free standing oven with extractor over, plumbing for a dish washer, central heating radiator, a storage cupboard and a door leading to the utility room.
LEAN TO 11′ 5″ x 40′ 1″ (3.5m x 12.24m)
A large area incorporating the utility room with plumbing for a washing machine, wall units and a sink, three storage cupboards, a WC, and the garage. This provides access from the front of the property straight through to the rear garden.
BEDROOM ONE 12′ 5″ x 13′ 9″ (3.8m x 4.2m)
A double bedroom with a range of fitted wardrobes, a double glazed bay window to the front elevation and a central heating radiator.
BEDROOM THREE 8′ 11″ x 10′ 3″ (2.73m x 3.14m)
A double bedroom with a built in storage cupboard housing the recently installed central heating boiler, a double glazed window to the front elevation and a central heating radiator.
SHOWER ROOM
A fully tiled shower room comprising of a walk in shower unit, sink and wc. There are two double glazed windows to the side elevation and a built in storage cupboard.
FIRST FLOOR
LANDING
Doors to the bedroom, bathroom, built in storage cupboard and storage under the eaves
BEDROOM TWO 12′ 9″ x 19′ 0″ (3.9m x 5.8 max)
A large double bedroom with a built in storage cupboard, velux window to the front elevation and a central heating radiator. There is further storage under the eaves and a loft hatch providing access to a small loft.
BATHROOM
A fully tiled bathroom with the suite comprising of a bath, sink, wc, central heating radiator and a velux window to the rear elevation.
OUTSIDE
GARDEN
A mature, well maintained private rear garden having a slabbed patio area leading to the lawn which is bordered by mature shrubs and fencing to the boundaries.
Interested in this property?














