Gorleston Road, Yardley Wood
3 bedroom end of terrace house
Summary
*Corner Plot* A fantastic opportunity to purchase a well presented three bedroom end terraced property with lots of potential to extend (STPP). Comprising of a lounge, kitchen-diner, three bedrooms and a refitted shower room.
- 3 bed
- 1 bath
- Corner Plot
- Potential To Extend (STPP)
- Three Bedrooms
- Kitchen-Diner
- Refitted Shower Room
- Lounge
APPROACH
Via the gravelled driveway leading to the front door. There is a gate providing access to the rear garden.
ENTRANCE HALL
Stairs leading to the first floor landing, central heating radiator and a door to the lounge.
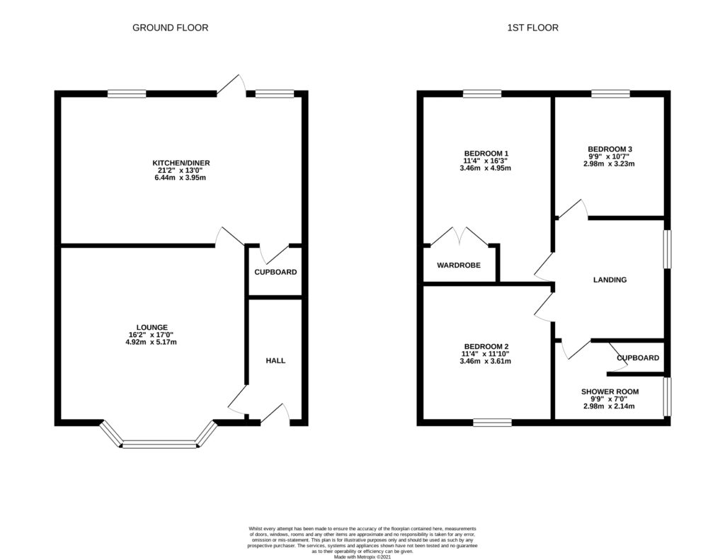
LOUNGE 14′ 2″ x 17′ 3″ (4.33m x 5.26m)
A double glazed bay window to the front elevation central heating radiator and a door leading to the lounge.
KITCHEN/DINER 10′ 0″ x 17′ 3″ (3.05m x 5.27m)
A modern open plan kitchen-diner, comprising of a range of high gloss wall and floor base units with work surface over incorporating an inset sink and a gas hob. There is a built in oven and washing machine. To the rear there is a double glazed window a door providing access to the garden, a central heating radiator and a large under stairs storage cupboard.
SHOWER ROOM
A recently fitted, fully tiled shower room with the suite comprising of a walk in shower unit, low level wc, sink with vanity unit under and a wall mounted backlit mirror. There is an obscure double glazed window to the side elevation, radiator and a built in storage cupboard.
BEDROOM ONE 9′ 10″ x 12′ 9″ (3m x 3.9m)
A double bedroom with a built in wardrobe, a double glazed window to the rear elevation and a central heating radiator.
BEDROOM TWO 9′ 10″ x 10′ 9″ (3m x 3.3m)
Having a double glazed window to the front elevation and a central heating radiator.
BEDROOM THREE 7′ 4″ x 9′ 10″ (2.25m x 3m)
Having a double glazed window to the rear elevation and a central heating radiator.
GARDEN
A private rear garden with a slabbed patio area leading to a lawn with fencing to boundaries. There is a separate raised patio area housing garden sheds and a gate providing access to the front drive.











