Stratford Road, Hall Green
3 bedroom semi-detached house
Summary
A rare offering to the market- a four bedroom semi-detached home located on the Shirley/Hall Green border. It has been comprehensively extended by the current owners and has further potential due to the size and shape of the plot. Briefly comprising of; three reception rooms, detached garage, four double bedrooms and downstairs shower room.
- 4 bed
- 2 bath
- Rare Corner Plot
- Three Reception Rooms
- Central Location with Wide Plot
- Detached Garage
- No Chain
- Four Bedrooms
- Kitchen/Breakfast Room
- Downstairs Shower Room
- Double Storey Extension
- Paved Driveway
APPROACH
Large driveway with detached garage and access to the porch;
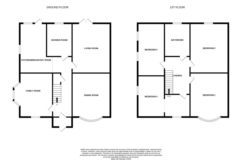
GROUND FLOOR
ENTRANCE HALL
Stairs leading to the first floor landing, central heating radiator, meter cupboards and doors to ground floor rooms;
RECEPTION ONE 13′ 1″ x 11′ 8″ (4.0m x 3.58m)
Double glazed window to the front and side elevation, two central heating radiators and fireplace;
RECEPTION TWO 10′ 9″ x 15′ 1″ (3.3m x 4.6 m)
Double glazed window to the front elevation, a central heating radiator and a gas fire with fireplace;
RECEPTION THREE 10′ 9″ x 17′ 8″ (3.3m x 5.4m)
Double glazed patio doors to the rear elevation leading to the rear garden, central heating radiator and a gas fire with fireplace.
KITCHEN 10′ 9″ x 15′ 8″ (3.3m x 4.8m)
The kitchen diner consists of a range of wall and floor base units, worksurface over incorporating an inset Belfast style sink, with mixer tap and space for a freestanding cooker with fitted extractor over. There is tiling to the splashbacks and floor, a central heating radiator, two double glazed windows to the side and rear elevation and a double glazed door to the rear elevation leading to the rear garden;
GROUND FLOOR SHOWER ROOM
Comprising of a sink with space and plumbing for a washing machine under, shower, wc and a wall mounted central heating boiler. There is tiling to the wall and floor, a double glazed window to the rear elevation and a heated towel rail;
FIRST FLOOR
LANDING
Access to the loft and doors leading to the first floor rooms;
BEDROOM ONE 19′ 0″ x 11′ 1″ (5.8m x 3.4m)
A large master bedroom with three double glazed windows, two to the front elevation and one to the side elevation and two central heating radiators;
BEDROOM TWO 10′ 9″ x 14′ 9″ (3.3m x 4.5m)
A double glazed bay window to the front elevation and a central heating radiator;
BEDROOM THREE 13′ 9″ x 10′ 9″ (4.2m x 3.3m)
A double glazed window to the rear elevation, a central heating radiator and built in wardrobes;
BEDROOM FOUR 10′ 9″ x 11′ 5″ (3.3m x 3.5m)
Two double glazed windows to the side elevation and a central heating radiator;
BATHROOM
The family bathroom comprises of a panelled bath, sink, corner shower cubicle and a low level flush wc. There is tiling to the floor and splash prone areas, a heated towel rail and an obscure double glazed window to the rear elevation;
GARDEN
The private rear garden has a brick paved patio area that leads to the lawn and provides access to the front of the property. There is fencing to the boundaries and space for a shed;
GARAGE
A detached garage situated to the side of the property.


















